Key Features
- Multi-zone underfloor heating
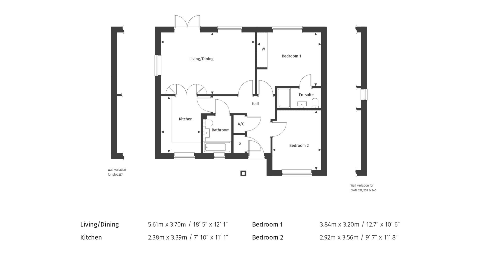
- Large Bedroom 1 with built-in wardrobe and ensuite
- Modern kitchen equipped with contemporary appliances
- Heating and hot water provided by an Air Source Heat Pump
- Stylish family bathroom
- EV charging point
Property Details
Price: £450,000
Property Size: 784 Sq Ft
Property Type: Bungalow
Property Status: For Sale
Bedrooms: 2
Bathrooms: 2
Parking: Driveway
Parking Spaces: 2
Description
Location Details
Name/ No.: 238, The Bishopdale
Street: Potters Wood
Line 2: Edmondsham Road
Town / City: Verwood
County: Dorset
Postcode: BH31 7BG
What's Nearby
Specification
- Luxury units with soft close cabinet doors and drawers
- Integrated stainless steel oven
- Induction hob with chimney style extractor hood
- Integrated dishwasher
- Integrated fridge/freezer
- One and a half bowl sink with chrome mixer tap
- Laminate worktop with upstand and glass splashback above hob
- Under cabinet lighting
- Karndean flooring to kitchen and open plan dining/family
areas*
- White sanitary ware with contemporary chrome fittings
- Full and half height wall tiling to bathroom and en suite*
- Wall mounted vanity units to bathroom and en suite
- Anthracite heated towel rails to bathroom and en suite
- HIB mirror to bathroom and ensuite
- Mirror to cloakroom
- Karndean flooring to bathroom and en suite*
Lighting points and electrical fittings provided in ample quantity
throughout plus:
- Wiring for aerial, to be connected by purchaser
- Recessed ceiling LED downlighters to kitchen, utility, hall, landing, bathroom, en suite and cloakroom
- Houses: Chrome sockets & switches to ground floor and landing (excluding cupboards) with white switches to first floor
- Bungalows: Chrome sockets & switches to all rooms except
bedrooms, utilities and cupboards. - Outside lighting to front entrance door and patios
- TV, Fibre and Sky Q points provided to home**
- Heating and hot water provided by an Air Source Heat Pump
- Multi-zone underfloor heating to ground floor
- Radiators with thermostatic valves and zone control to first
floor
- Oak faced doors with grooves with contemporary chrome lever
handles - Flat plastered ceilings finished in matt white emulsion
- Moulded architraves with co-ordinated skirting boards in white
satin finish - Walls finished in matt white emulsion
- Wardrobes to bedroom 1, with full height mirror doors, internal
shelf and hanging rail - PVCu double glazed doors and windows, colour varies
^ The Bishopdale bungalow has an integrated stainless steel oven only
* Varies between housetype.
** These vary between housetype and require subscription with service provider.
Please speak with a Sales Advisor for more information.
- Brick paviors to front drive, textured slabs to patios and rear
path - Rear gardens turfed
- Outside tap
- Elevations vary, please ask for plot specific elevation finishes
Additional Media
Mortgage Calculator
Terms and Conditions
The information provided by Penny Farthing's mortgage calculator is for illustrative purposes only and accuracy is not guaranteed.
The values and figures shown are hypothetical and may not be applicable to your individual situation. Be sure to consult a financial professional prior to relying on the results.
Stamp Duty Calculator
Expected Stamp Duty
Disclaimer - for a complete breakdown of stamp duty tax, including for investors and customers with more than one property, visit the government’s website









