Key Features
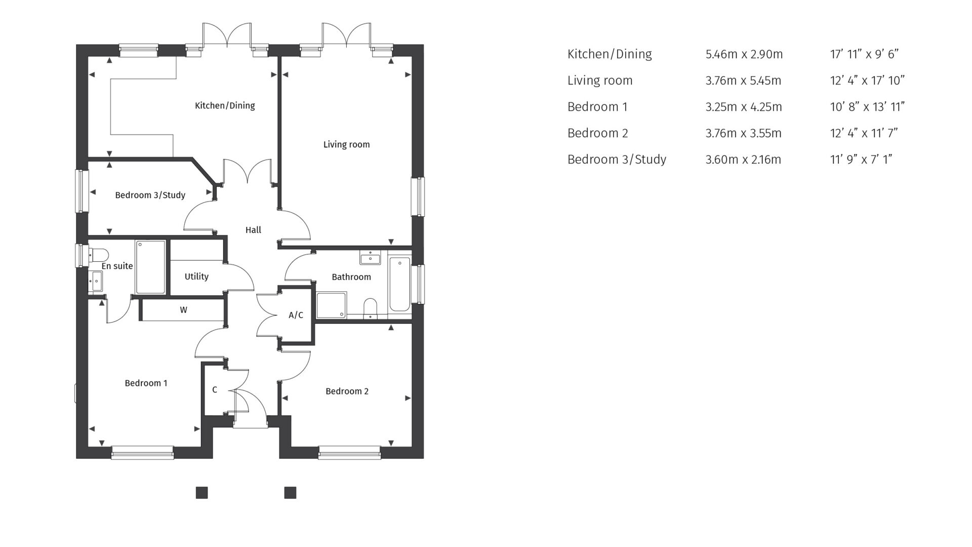
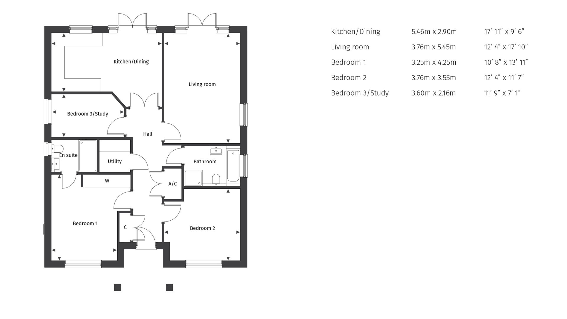
- Dual-aspect luxury kitchen/dining room with integrated appliances
- Separate Living Room featuring French doors
- Separate Utility/Cloakroom
- Large bedroom 1 with built-in wardrobe and en suite
- Versatile bedroom 3 that can double as a study
Property Details
Price: £565,000
Property Type: Bungalow
Property Status: For Sale
Bedrooms: 3
Bathrooms: 2
Parking: Single Garage
Parking Spaces: 2
Garage Spaces: 1
Description
Secure your dream home this Christmas and we’ll cover your Stamp Duty costs up to £25,000*
Welcome to The Birch, a charming 3-bedroom bungalow with a garage, situated in the tranquil and desirable community of Oakwood Grove. This thoughtfully designed home offers a perfect blend of comfort and convenience. The Birch features spacious living areas, a modern kitchen, versatile bedrooms, stylish bathrooms, ample storage, and a dedicated garage. The Birch promises a lifestyle of ease and elegance.
The Birch features a spacious and inviting living room, ideal for both relaxation and entertaining. The open-plan kitchen and dining area provide a versatile space for family meals and social gatherings. The kitchen is equipped with contemporary fittings and ample storage, designed to meet all your culinary needs. The Birch also includes a utility room and a convenient WC, enhancing the functionality of the home.
The Birch offers three well-appointed bedrooms, providing comfortable and private spaces for rest and relaxation. Bedroom 1 includes an ensuite bathroom, offering a private retreat for unwinding after a long day. Bedroom 2 is generously sized, while bedroom 3 can serve as a study or guest room, adding to the versatility of the home. A modern family bathroom serves the additional bedrooms, ensuring convenience for all residents. Thoughtfully designed with you in mind, the Birch offers multiple storage cupboards throughout.
Images and CGIS shown are indicative only.
Location Details
Name/ No.: 9, The Birch
Street: Oakwood Grove
Town / City: Alderholt
County: Dorset
Postcode: SP6 3FL
What's Nearby
Specification
- Luxury units with soft close cabinet doors and drawers
- Integrated stainless steel oven and combi microwave
- Induction hob with chimney style extractor hood
- Integrated dishwasher
- Integrated fridge/freezer
- One and a half bowl sink with chrome mixer tap
- Laminate worktop with upstand and glass splashback above
hob - Under cabinet lighting
- Karndean flooring to kitchen and open plan dining/family
areas*
- White sanitary ware with contemporary chrome fittings
- Full and half height wall tiling to bathroom and en suite*
- Wall mounted vanity units to bathroom and en suite
- Anthracite heated towel rails to bathroom and en suite
- Mirror to bathroom and ensuite
- Mirror to cloakroom
- Karndean flooring to bathroom and en suite*
Lighting points and electrical fittings provided in ample quantity
throughout plus:
- Wiring for aerial, to be connected by purchaser
- Recessed ceiling LED downlighters to kitchen, utility, hall,
landing, bathroom, en suite and cloakroom - Houses: Chrome sockets & switches to ground floor and
landing (excluding cupboards) with white switches to first floor - Bungalows: Chrome sockets & switches to all rooms except
bedrooms, utilities and cupboards. - Outside lighting to front entrance door and patios
- TV, Fibre and Sky Q points provided to home**
- Heating and hot water provided by an Air Source Heat Pump
- Multi-zone underfloor heating to ground floor
- Radiators with thermostatic valves and zone control to first
floor
- Oak faced doors with grooves with contemporary chrome lever
handles - Flat plastered ceilings finished in matt white emulsion
- Moulded architraves with co-ordinated skirting boards in white
satin finish - Walls finished in matt white emulsion
- Wardrobes to bedroom 1, with full height mirror doors, internal
shelf and hanging rail - PVCu double glazed doors and windows, colour varies
- Brick paviors to front drive, textured slabs to patios and rear
path - Power and light to the garage (if within the curtilage of the
property) with spur for future electric door and EV charging
point - Rear gardens turfed
- Outside tap
- Elevations vary, please ask for plot specific elevation finishes
* Varies between housetype.
** These vary between housetype and require subscription with service provider.
Please speak with a Sales Advisor for more information.
Additional Media
Mortgage Calculator
Terms and Conditions
The information provided by Penny Farthing's mortgage calculator is for illustrative purposes only and accuracy is not guaranteed.
The values and figures shown are hypothetical and may not be applicable to your individual situation. Be sure to consult a financial professional prior to relying on the results.
Stamp Duty Calculator
Expected Stamp Duty
Disclaimer - for a complete breakdown of stamp duty tax, including for investors and customers with more than one property, visit the government’s website















